Entra nel team

Lavora con noi

Capannone in vendita a Rovato – Rif. 96941

Prezzo
1.267.000€

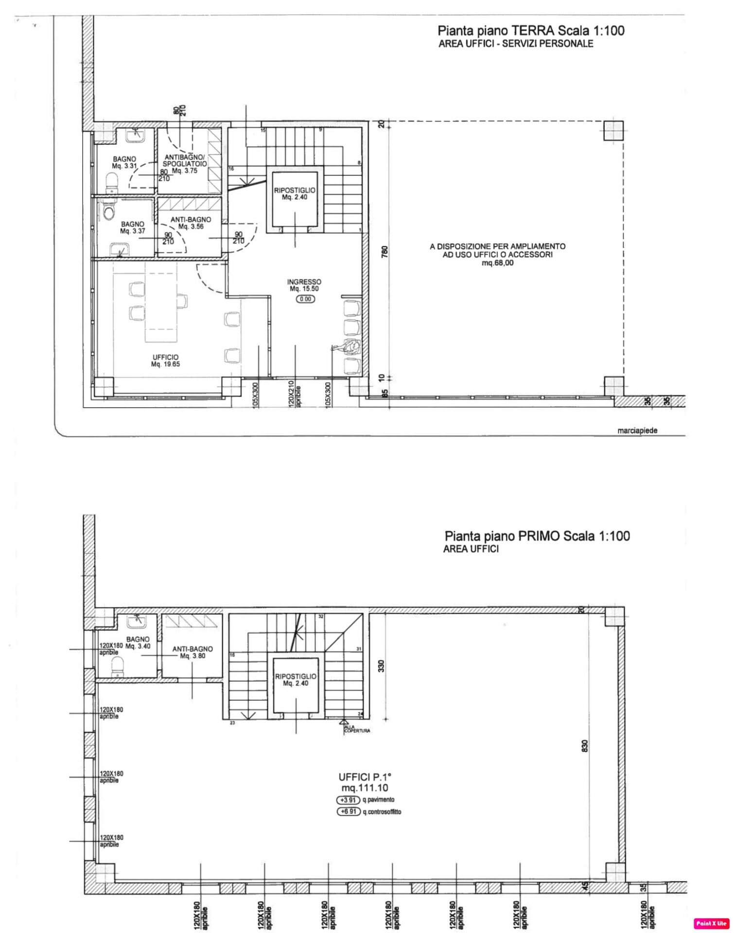
Planimetria

Rif 96941

Descrizione

CAPANNONI ARTIGIANALI IN VENDITA A ROVATO

Proponiamo in vendita diverse soluzioni di nuova edificazione con varie metrature, realizzate secondo normativa sismica vigente con strutture REI 120.

Le soluzioni si sviluppano su una superficie di circa 1.100 mq per ciascuna porzione di capannone; predisposto da corpo uffici con superficie di 150 mq, sia al piano terra che al piano primo (quindi al rustico) con possibilità di creare appartamento per custode al piano primo. Ulteriori 750 mq di area esterna completano ogni porzione.

Dati tecnici: altezza massima pari a 8,50 m, altezza interna sottotrave pari a 7,5 m, portone di accesso altezza di 4 m, mensole per carroponte con portata di 10 ton. ad un’altezza di 6 m.

Il capannone è consegnato, privo di impianti, con pavimento industriale in calcestruzzo armato, serramenti in alluminio doppi vetri, portoni in acciaio apribili a libro, porte uscite di sicurezza, cancello pedonale e carraio scorrevole (predisposti per apertura meccanizzata) e predisposizione anello antincendio.

Soluzioni disponibili: porzione di capannone di circa 1.100 mq come da descrizione sopra riportata, oppure intero capannone di 2.200 mq con area di 1.500 mq.
Il costo si riferisce ad una sola porzione.

Per maggiori informazioni chiamare lo 030/23.88.560 o il 333/44.43.131

Traduzione in inglese:

ARTISAN SHOPS FOR SALE IN ROVATO

We offer for sale several new construction options with varying sizes, built according to current seismic regulations with REI 120 structures.

The solutions are developed on an area of approximately 1,100 sqm for each section of the warehouse; it includes office space of 150 sqm, both on the ground floor and the first floor (unfinished), with the possibility of creating a caretaker apartment on the first floor. An additional 750 sqm of external area completes each section.

Technical data: Maximum height of 8.50 m, internal height under the beam of 7.5 m, access door height of 4 m, crane beam brackets with a load capacity of 10 tons at a height of 6 m.

The warehouse is delivered without systems, with reinforced concrete industrial flooring, double-glazed aluminum windows, steel book-opening access doors, emergency exits, pedestrian and sliding car gates (prepared for automated opening), and pre-installation for a fire ring.

Available solutions: Section of warehouse of about 1,100 sqm as described above, or the entire warehouse of 2,200 sqm with an area of 1,500 sqm. The price refers to a single section.

For more information, call 030/23.88.560 or 333/44.43.131.

Prezzo
1.267.000€
Tipologia di contratto
in vendita
Tipologia di immobile
Capannone
Classe energetica
NZEB
Agenzia di competenza
La Torre Servizi Immobiliari S.r.l. Corte Franca

Richiedi informazioni

Rif 96941

    Compila il form con il tuo indirizzo email o se preferisci il tuo numero di telefono e sarai ricontattato al più presto dal nostro team dedicato.

    Planimetria

    Rif 96941

    Condividi questa proprietà

    Ricevi le nuove proposte

    Clicca qui

    Vuoi vendere?

    Clicca qui