Entra nel team

Lavora con noi

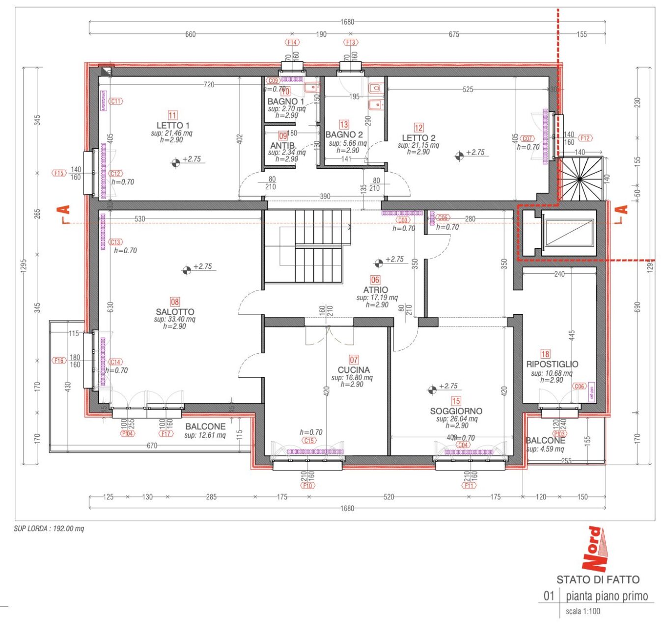
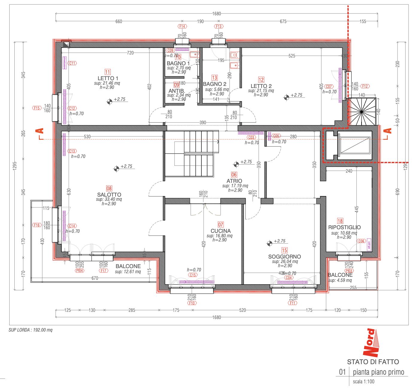
Planimetria

Rif 93475

Descrizione

Proponiamo in vendita appartamento su due livelli di ampie dimensioni costruito negli anni ’80. La soluzione è composta quanto al piano terra da giardino privato di 320 mq, box auto, taverna, lavanderia e portico; tramite scala interna si accede al piano primo composto da salotto, cucina, soggiorno, due camere (con possibilità di realizzarne tre), due bagni, e due balconi.

Potenzialmente è possibile realizzare due appartamenti da 80 mq l’uno.

Per maggiori informazioni e per fissare un appuntamento chiama il 3397605869 (Alberto) o lo 0302388560.

Traduzione in inglese:

APARTMENT FOR SALE OVER TWO LEVELS, SPACIOUS, BUILT IN THE 1980S

We offer for sale a two-level apartment of generous size, built in the 1980s. The ground floor consists of a 320 sqm private garden, garage, basement, laundry room, and porch. An internal staircase leads to the first floor, which includes a living room, kitchen, lounge, two bedrooms (with the possibility of creating a third), two bathrooms, and two balconies.

It is also possible to potentially divide the property into two 80 sqm apartments.

For more information and to schedule a viewing, call 3397605869 (Alberto) or 0302388560.

 

Prezzo
250.000€
Tipologia di contratto
in vendita
Tipologia di immobile
Quadrilocale
Classe energetica
G
Bagni
2 Bagni
Camere
3 Camere
Box
Box doppio
Metri quadrati proprietà
170 mq
Metri quadrati box
39 mq
Metri quadrati giardino
320 Mq
Metri quadrati terrazzo
17 Mq
Metri quadrati cantina
56 Mq
Giardino
Giardino privato
Agenzia di competenza
La Torre Servizi Immobiliari S.r.l. Corte Franca

Richiedi informazioni

Rif 93475

    Compila il form con il tuo indirizzo email o se preferisci il tuo numero di telefono e sarai ricontattato al più presto dal nostro team dedicato.

    Planimetria

    Rif 93475

    Condividi questa proprietà

    Ricevi le nuove proposte

    Clicca qui

    Vuoi vendere?

    Clicca qui