Entra nel team

Lavora con noi

Trilocale in vendita a Castelcovati – Rif. 97411

In Trattativa
Prezzo
230.000€

Planimetria

Rif 97411

Descrizione

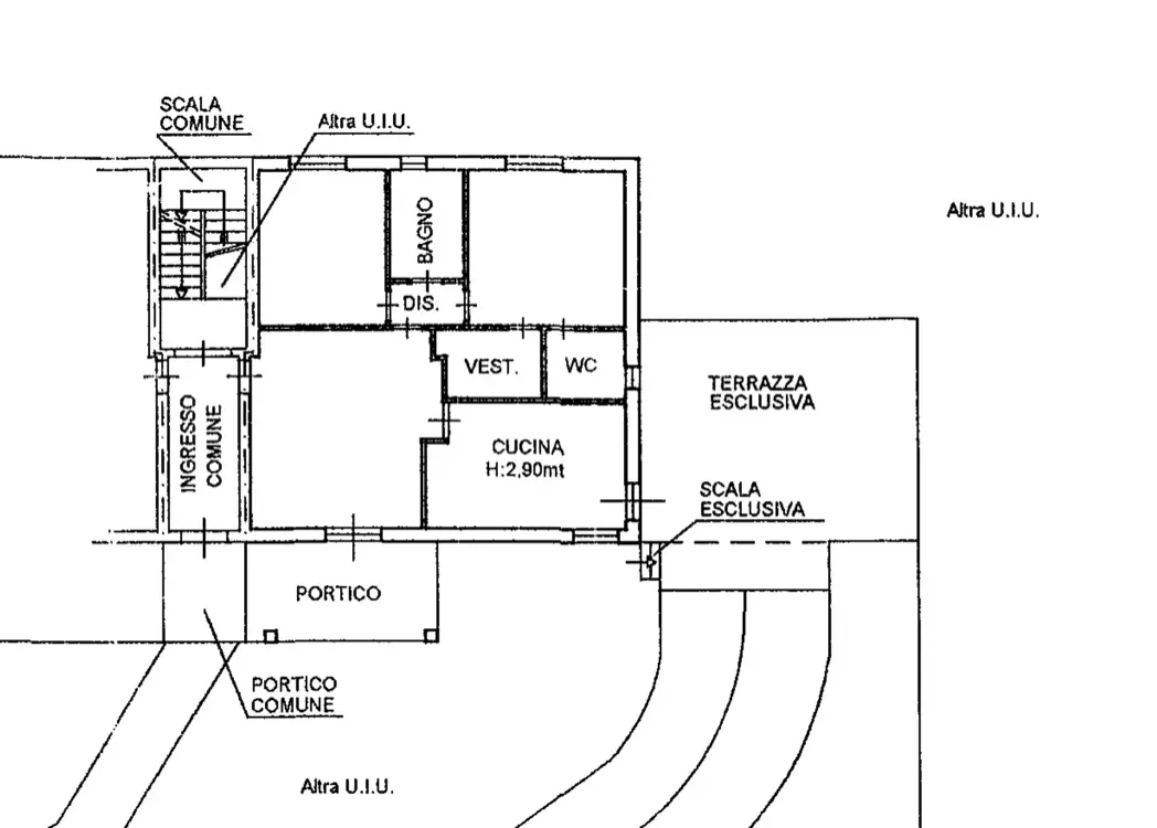
TRILOCALE IN VENDITA A CASTELCOVATI

Proponiamo in vendita trilocale in villa composta da tre unità abitative.

Al piano terra dispone di soggiorno, cucina separata abitabile dalla quale si accede all’ ampia terrazza, giardino parziale esclusivo di 500 mq, disimpegno, bagno, camera doppia e camera matrimoniale.
Al piano interrato dispone di cantina, taverna e spazio comune con le altre due unità dove trova spazio un posto auto esclusivo.

Hai un immobile da vendere? Chiamaci al 331 4910 470 (Roberta)  per una valutazione gratuita. “Affidaci anche Tu la Tua casa”.

Traduzione in inglese:

THREE-ROOM APARTMENT FOR SALE IN CASTELCOVATI

We offer for sale a three-room apartment in a villa composed of three residential units.

On the ground floor, it features a living room, separate habitable kitchen with access to a large terrace, partial exclusive garden of 500 sqm, hallway, bathroom, a double bedroom, and a master bedroom.

In the basement, there is a cellar, tavern, and a shared space with the other two units where an exclusive parking space is available.

Do you have a property to sell? Call us at 331 4910 470 (Roberta) for a free valuation. “Entrust us with your home too.”

Prezzo
230.000€
Tipologia di contratto
in vendita
Tipologia di immobile
Trilocale
Classe energetica
G
Bagni
2 Bagni
Camere
2 Camere
Box
Posto auto coperto
Metri quadrati abitazione
100 mq
Metri quadrati giardino
500 Mq
Metri quadrati terrazzo
35 Mq
Metri quadrati cantina
8 Mq
Agenzia di competenza
La Torre Servizi Immobiliari S.r.l. Castelcovati

Richiedi informazioni

Rif 97411

    Compila il form con il tuo indirizzo email o se preferisci il tuo numero di telefono e sarai ricontattato al più presto dal nostro team dedicato.

    Planimetria

    Rif 97411

    Vuoi vendere?

    Clicca qui