Entra nel team

Lavora con noi

Trilocale in vendita a Sulzano – Rif. 90453

Prezzo
348.000€

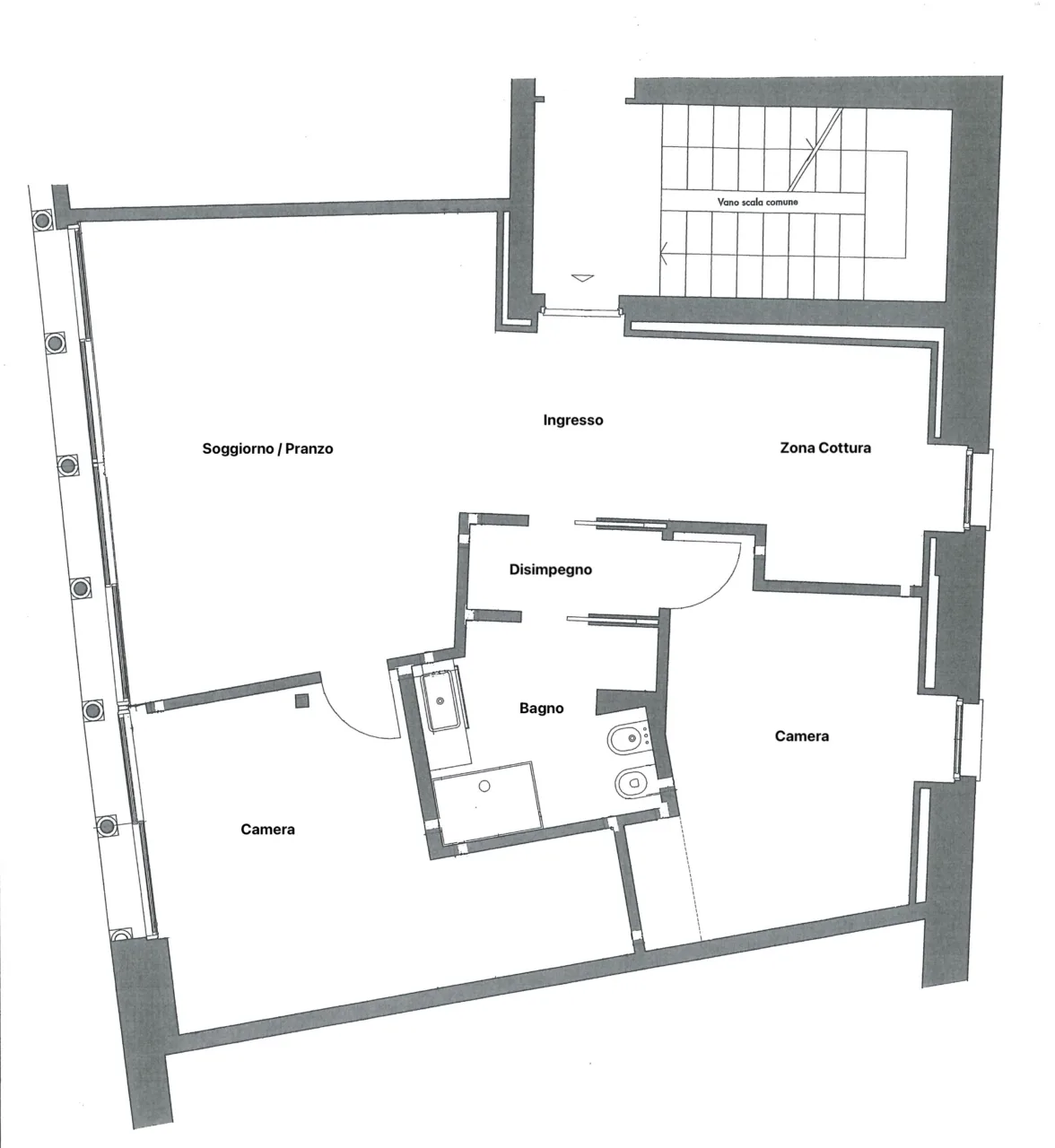
Planimetria

Rif 90453

Descrizione

TRILOCALE IN VENDITA A SULZANO (LAGO D’ISEO)

Posizionato al secondo piano ed inserito in un complesso signorile in pieno centro storico a due passi dal lago, completamente ristrutturato nel 2023 e arredamento di pregio compreso nel prezzo.

L’appartamento presenta la zona giorno open space con ampia vetrata; disimpegno, bagno con doccia, camera singola, camera matrimoniale con cabina armadio.  Al piano terra dispone di due posti auto coperti all’interno dell’edificio ed al piano interrato doppia cantina.

Finiture: arredamento su misura, pavimentazioni in pietra e legno finito con resina, colonne in pietra di Sarnico restaurate, vetrate con oscuranti e filtranti elettrici sia in camera che in zona giorno, antifurto e impianto raffrescamento. La classe energetica dell’appartamento è A4 con caldaia a condensazione.

HAI UN IMMOBILE DA VENDERE? CONTATTA I NOSTRI UFFICI ALLO 030 23 88 560 – 333 44 43 131

Traduzione in inglese:

THREE-ROOM APARTMENT FOR SALE IN SULZANO (LAKE ISEO)

Located on the second floor in a prestigious complex in the historic center, just a few steps from the lake, this apartment was completely renovated in 2023, and the high-quality furnishings are included in the price.

The apartment features an open-plan living area with a large window; a hallway, bathroom with shower, single bedroom, and a master bedroom with walk-in closet.
On the ground floor, the property includes two covered parking spaces inside the building, and in the basement, there are two cellars.

Finishes include: custom-made furniture, stone and wood flooring finished with resin, restored Sarnico stone columns, windows with electric blackout and filtering blinds in both the bedroom and living area, alarm system, and cooling system. The apartment has an A4 energy rating and is equipped with a condensing boiler.

DO YOU HAVE A PROPERTY TO SELL? CONTACT OUR OFFICES AT +39 030 23 88 560 – +39 333 44 43 131

 

Prezzo
348.000€
Tipologia di contratto
in vendita
Tipologia di immobile
Trilocale
Classe energetica
A4
Bagni
1 Bagno
Camere
2 Camere
Box
Posto auto coperto
Metri quadrati proprietà
85 mq
Metri quadrati box
20 mq
Metri quadrati cantina
15 Mq
Agenzia di competenza
La Torre Servizi Immobiliari S.r.l. Corte Franca

Richiedi informazioni

Rif 90453

    Compila il form con il tuo indirizzo email o se preferisci il tuo numero di telefono e sarai ricontattato al più presto dal nostro team dedicato.

    Planimetria

    Rif 90453

    Condividi questa proprietà

    Ricevi le nuove proposte

    Clicca qui

    Vuoi vendere?

    Clicca qui