Entra nel team

Lavora con noi

Villa a schiera di testa in vendita a Castelcovati – Rif. 115946

In Trattativa
Prezzo
225.000€

Planimetria

Rif 115946

Descrizione

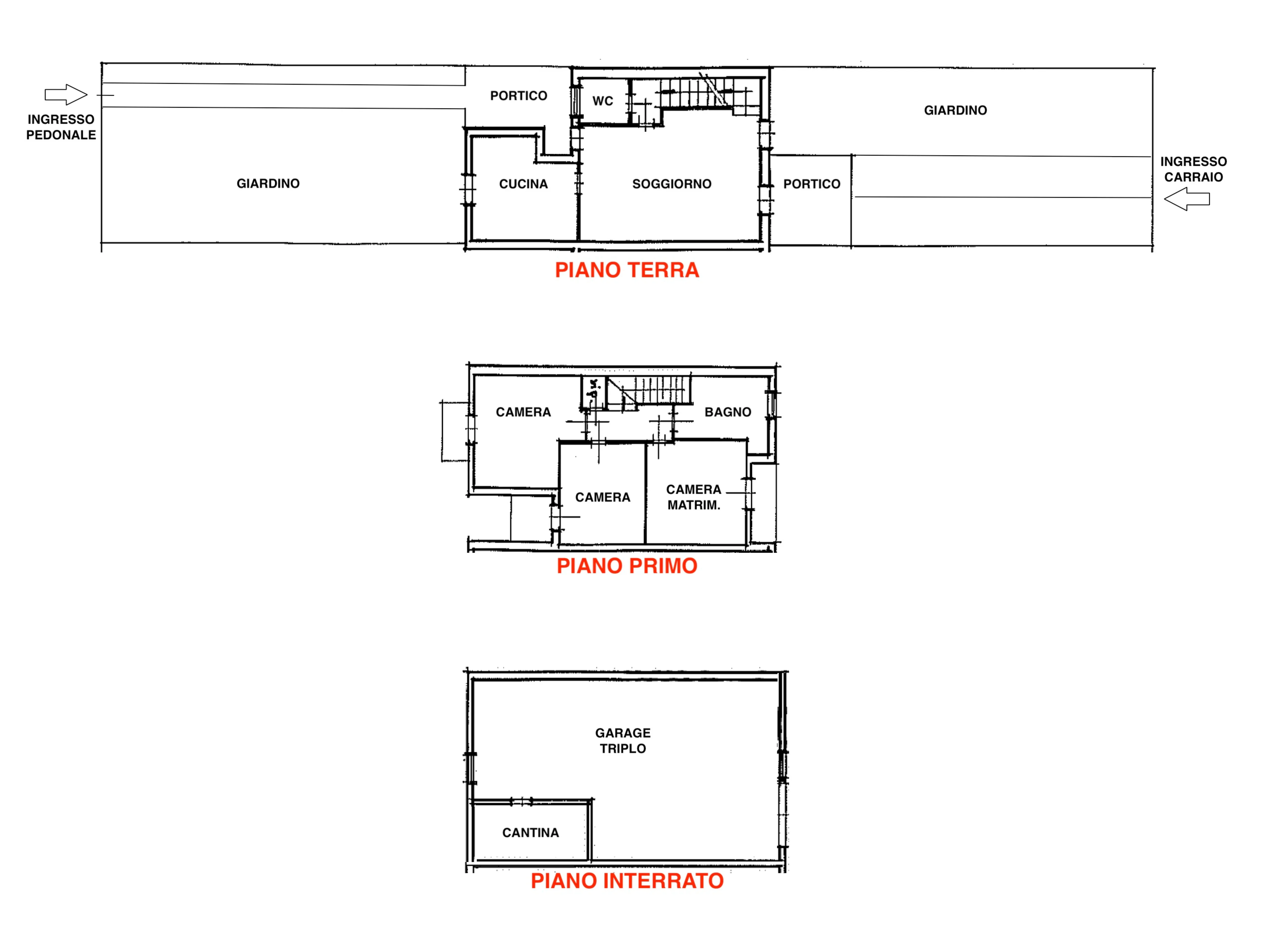
VILLA DI TESTA IN VENDITA A CASTELCOVATI

Ubicata in tranquilla zona residenziale, proponiamo in vendita villa di testa completamente indipendente e disposta su due piani oltre interrato.

Giardino fronte e retro con portico, ingresso nel soggiorno con camino, cucina separata e bagno al piano terra. Zona notte al primo piano composta da tre camere ognuna con balcone, bagno con doccia e vasca, comodo ripostiglio. Al piano interrato autorimessa tripla e cantina completano l’abitazione.

HAI UN IMMOBILE DA VENDERE? CONTATTACI SENZA IMPEGNO AL 030 70 80 769

Traduzione in inglese:

END VILLA FOR SALE IN CASTELCOVATI

Located in a quiet residential area, we offer for sale a fully independent end villa arranged over two floors plus a basement.

Front and rear garden with porch, entrance into the living room with fireplace, separate kitchen, and bathroom on the ground floor. The sleeping area on the first floor consists of three bedrooms, each with a balcony, a bathroom with both shower and bathtub, and a convenient storage room. The basement includes a triple garage and a cellar, completing the property.

DO YOU HAVE A PROPERTY TO SELL? CONTACT US WITHOUT OBLIGATION AT 030 70 80 769

Prezzo
225.000€
Tipologia di contratto
in vendita
Tipologia di immobile
Villa a schiera di testa
Classe energetica / kWh
F
97,72 kWh/m2 anno
Bagni
2 Bagni
Camere
3 Camere
Box
Box triplo
Metri quadrati abitazione
100 mq
Metri quadrati box
45 mq
Metri quadrati giardino
100 Mq
Metri quadrati terrazzo
8 Mq
Metri quadrati cantina
5 Mq
Metri quadrati portico
8 Mq
Giardino
Giardino privato
Conformità verificata
Conformità urbanistica
Conformità verificata
Agenzia di competenza
La Torre Servizi Immobiliari S.r.l. Castelcovati

Richiedi informazioni

Rif 115946

    Compila il form con il tuo indirizzo email o se preferisci il tuo numero di telefono e sarai ricontattato al più presto dal nostro team dedicato.

    Planimetria

    Rif 115946

    Condividi questa proprietà

    Ricevi le nuove proposte

    Clicca qui

    Vuoi vendere?

    Clicca qui