Entra nel team

Lavora con noi

Villetta in vendita a Coccaglio – Rif. 89845

Prezzo
430.000€

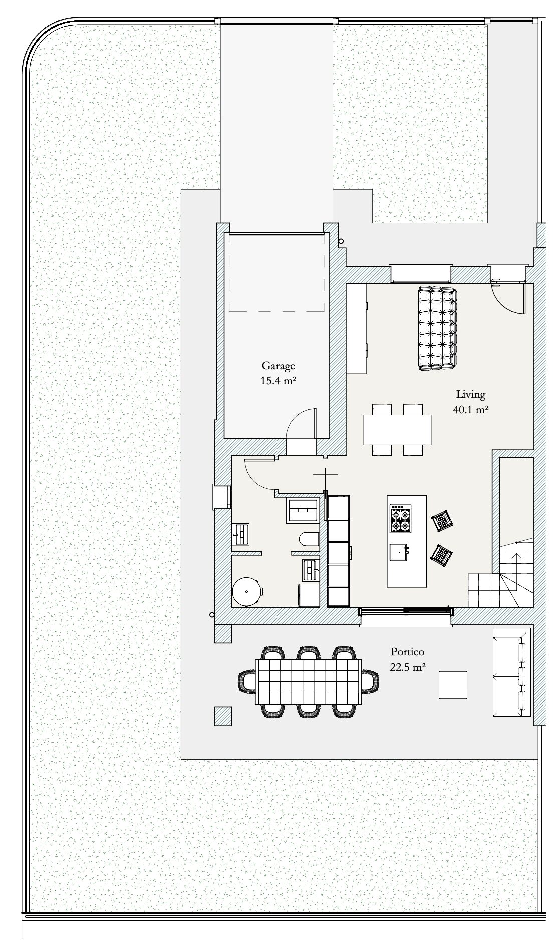
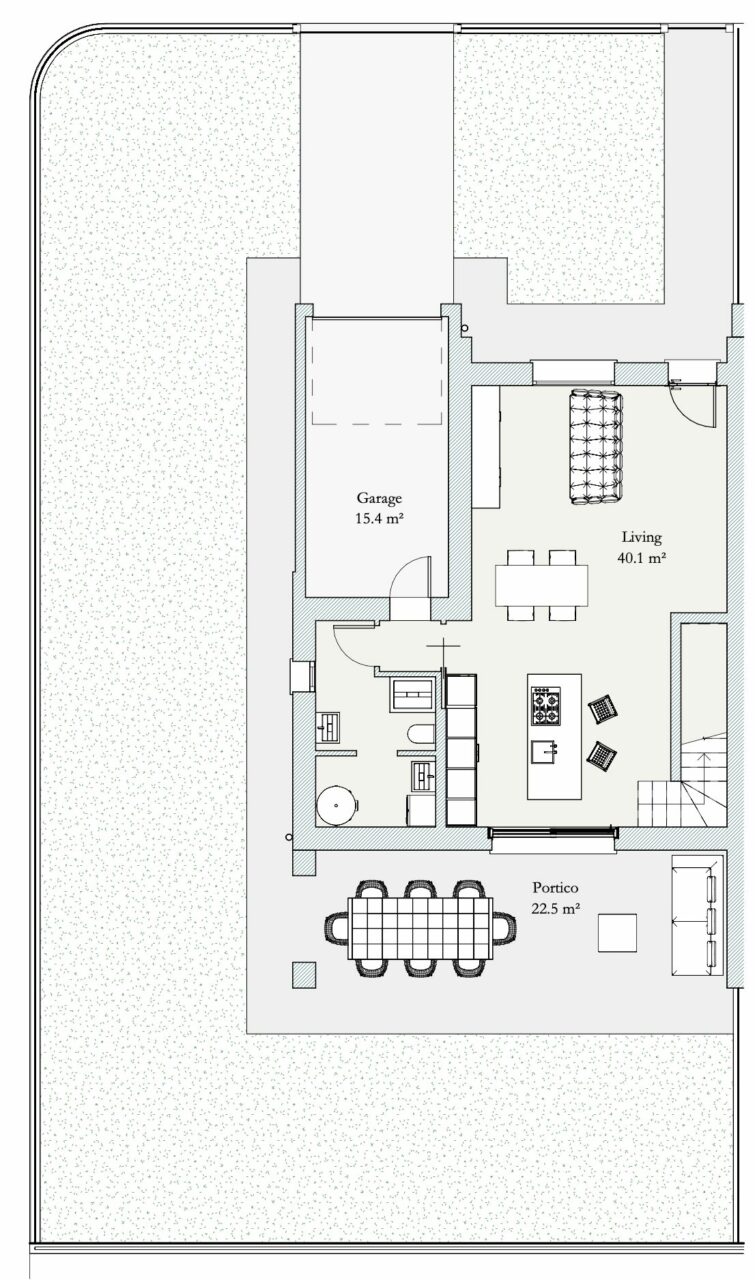
Planimetria

Rif 89845

Descrizione

VILLA A SCHIERA DI PROSSIMA COSTRUZIONE A COCCAGLIO

In un nuovo complesso residenziale nelle vicinanze del Monte Orfano, composto da 5 unità abitative, proponiamo Villa a Schiera di Testa che si sviluppa su due livelli.
L’unità abitativa si sviluppa a piano terra con un ampio living con cucina a vista direttamente collegato al portico esterno per vivere al meglio la zona verde esclusiva; inoltre troviamo un bagno, una lavanderia ed il box privato con accesso interno tramite disimpegno. Al piano superiore trovano spazio tre camere da letto ed un bagno.
L’esclusività di questo appartamento è dato anche dalla sua indipendenza: nessuna spesa condominiale, ingressi carraio e pedonale privati ed anche la geometria delle coperture rende indipendente ogni soluzione.
Il progetto è stato pensato per offrire alta efficienza energetica (Classe A3, ≥ 3,51 kWh/m² anno) ed il massimo comfort in termini costruttivi e qualità estetica. La pompa di calore aria-aria, pensata per la climatizzazione estiva ed invernale, garantisce alte prestazioni e bassi consumi, la ventilazione meccanica controllata alti livelli di comfort ambientale.
Ogni Unità è dotata di un impianto fotovoltaico che contribuisce alla gestione energetica dell’appartamento, garantendo un ulteriore risparmio sui costi energetici e un minore impatto ambientale.

Nel complesso questa residenza rappresenta una soluzione abitativa perfetta per chi cerca un ambiente esclusivo, moderno e sostenibile.

Contattaci per maggiori informazioni.
Traduzione in inglese:

TERRACED HOUSE UNDER CONSTRUCTION IN COCCAGLIO

Located in a new residential complex near Monte Orfano, consisting of 5 housing units, we offer a End Unit Terraced House spread over two levels.

On the ground floor, the unit features a spacious living area with an open kitchen, directly connected to the external porch, ideal for enjoying the exclusive green space. Additionally, there is a bathroom, a laundry room, and a private garage with internal access through a hallway. The upper floor includes three bedrooms and a bathroom.

The uniqueness of this property is also given by its independence: no condominium fees, private car and pedestrian entrances, and the design of the roof structure ensures that each unit remains independent.

The project has been designed to provide high energy efficiency (Class A3, ≥ 3.51 kWh/m² per year) and maximum comfort in both construction and aesthetic quality. The air-to-air heat pump, designed for both summer and winter climate control, guarantees high performance and low consumption. The mechanical ventilation system ensures optimal environmental comfort.

Each unit is equipped with a photovoltaic system that contributes to the energy management of the apartment, ensuring additional savings on energy costs and a lower environmental impact.

In summary, this residence offers the perfect living solution for those looking for an exclusive, modern, and sustainable environment.

Contact us for more information.

Prezzo
430.000€
Tipologia di contratto
in vendita
Tipologia di immobile
Villetta
Classe energetica / kWh
A3
≥ 3,51 kWh/m² anno kWh/m2 anno
Bagni
2 Bagni
Camere
3 Camere
Box
Box singolo
Metri quadrati proprietà
100 mq
Metri quadrati box
20 mq
Metri quadrati giardino
200 Mq
Giardino
Giardino privato
Agenzia di competenza
La Torre Servizi Immobiliari S.r.l. Corte Franca

Richiedi informazioni

Rif 89845

    Compila il form con il tuo indirizzo email o se preferisci il tuo numero di telefono e sarai ricontattato al più presto dal nostro team dedicato.

    Planimetria

    Rif 89845

    Condividi questa proprietà

    Ricevi le nuove proposte

    Clicca qui

    Vuoi vendere?

    Clicca qui